物件ID:174339
情報公開日:2025年09月23日
情報更新日:2026年02月07日
立地
-
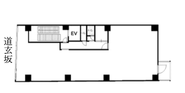
住所 東京都渋谷区道玄坂二丁目9-9 建物名/所在階 梅原ビル 8階/8階 最寄駅 JR山手線渋谷駅
徒歩4分近隣駅1 ー 近隣駅2 ー
費用/契約
-
造作価格 ー 賃料(坪単価) 1,508,628円(36,299円) 管理費/共益費(坪単価) 137,148円(3,299円) 保証金/敷金 ー / ご相談 償却 2ヶ月 礼金 1ヶ月 更新料/再契約料 ー その他費用 ー 仲介手数料 1ヶ月 その他手数料 ー 契約期間 3年 契約種別 普通賃貸借
用途
-
物件の現況 サービス(その他) 可能用途 指定あり 坪数 41.56坪
- 備考




















