物件ID:173745
情報公開日:2025年09月17日
情報更新日:2026年03月03日
立地
-
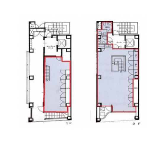
住所 東京都千代田区有楽町一丁目2-15 建物名/所在階 タチバナ日比谷ビル/1~2階 最寄駅 東京メトロ日比谷線日比谷駅
徒歩3分近隣駅1 東京メトロ銀座線銀座駅
徒歩5分近隣駅2 JR山手線有楽町駅
徒歩7分
費用/契約
-
造作価格 ー 賃料(坪単価) 2,060,630円(60,486円) 管理費/共益費(坪単価) ご相談(ご相談) 保証金/敷金 12ヶ月 / ご相談 償却 ご相談 礼金 ご相談 更新料/再契約料 1ヶ月 その他費用 ー 仲介手数料 1ヶ月 その他手数料 ー 契約期間 5年 契約種別 普通賃貸借
用途
-
物件の現況 サービス(その他) 可能用途 指定あり 坪数 34.07坪
- 備考
- 日比谷駅すぐの好立地テナント物件です。2026年2月引渡し予定
軽飲食程度ご相談可能(カフェなど)業種についてはスタッフまで
1Fが38.85㎡ 2Fが74.27㎡です。



















