物件ID:172474
情報公開日:2025年09月06日
情報更新日:2026年03月02日
立地
-
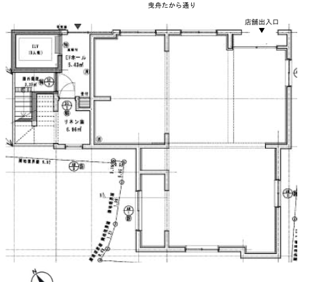
住所 東京都墨田区京島二丁目9-11 建物名/所在階 (仮称)TOMORU TOKYO京島 1F/1階 最寄駅 京成押上線京成曳舟駅
徒歩7分近隣駅1 ー 近隣駅2 ー
費用/契約
-
造作価格 ー 賃料(坪単価) 502,227円(20,900円) 管理費/共益費(坪単価) ー(ー) 保証金/敷金 2ヶ月 / ー 償却 1ヶ月 礼金 0ヶ月 更新料/再契約料 ー その他費用 ー 仲介手数料 1ヶ月 その他手数料 ー 契約期間 3年 契約種別 普通賃貸借
用途
-
物件の現況 ー 可能用途 指定あり 坪数 24.03坪
- 備考



















