物件ID:171831
情報公開日:2025年09月02日
情報更新日:2026年02月18日
立地
-
住所 東京都渋谷区元代々木町4 建物名/所在階 パークサイド代々木 202号室/2階 最寄駅 小田急線代々木八幡駅
徒歩2分近隣駅1 東京メトロ千代田線代々木公園駅
徒歩5分近隣駅2 小田急線代々木上原駅
徒歩10分
費用/契約
-
造作価格 ー 賃料(坪単価) 385,000円(27,910円) 管理費/共益費(坪単価) ー(ー) 保証金/敷金 ー / 3ヶ月 償却 ご相談 礼金 1ヶ月 更新料/再契約料 1ヶ月 その他費用 ー 仲介手数料 1ヶ月 その他手数料 ー 契約期間 2年 契約種別
用途
-
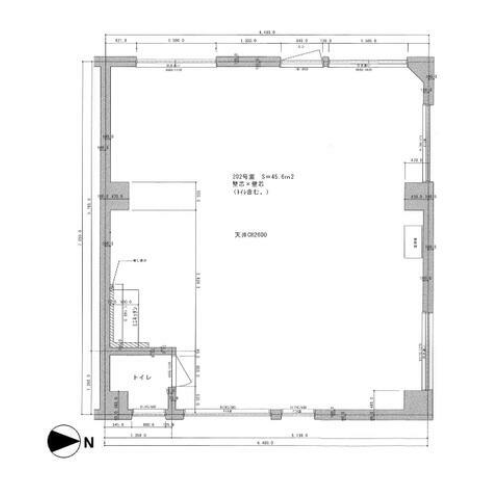
物件の現況 サービス(その他) 可能用途 指定あり 坪数 13.79坪
- 備考
- トイレ・エアコン 2025年9月内装全面リフォーム/床・壁・天井等
賃貸保証加入要 保険加入要 適格請求書発行不可
看板取付スペースあり



















