物件ID:171679
情報公開日:2025年09月02日
情報更新日:2026年02月27日
立地
-
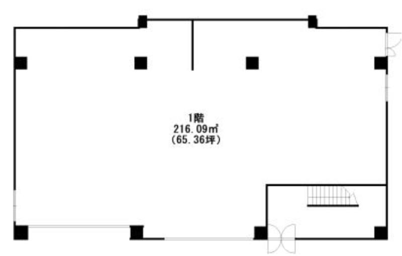
住所 東京都足立区谷中二丁目10-7 建物名/所在階 エムケイビル/1階 最寄駅 東京メトロ千代田線北綾瀬駅
徒歩1分近隣駅1 ー 近隣駅2 ー
費用/契約
-
造作価格 ー 賃料(坪単価) 1,100,000円(16,828円) 管理費/共益費(坪単価) 22,000円(336円) 保証金/敷金 6ヶ月 / ー 償却 ご相談 礼金 2ヶ月 更新料/再契約料 ー その他費用 ー 仲介手数料 1ヶ月 その他手数料 ー 契約期間 5年 契約種別 普通賃貸借
用途
-
物件の現況 サービス(その他) 可能用途 指定あり 坪数 65.37坪
- 備考



























