物件ID:171222
情報公開日:2025年08月28日
情報更新日:2026年02月16日
立地
-
住所 東京都新宿区四谷三丁目1-4 建物名/所在階 斉藤ビルディング 4F -B号/4階 最寄駅 東京メトロ丸ノ内線四谷三丁目駅
徒歩2分近隣駅1 東京メトロ南北線四ツ谷駅
徒歩9分近隣駅2 JR中央・総武線四ツ谷駅
徒歩10分
費用/契約
-
造作価格 ー 賃料(坪単価) 396,888円(22,551円) 管理費/共益費(坪単価) ご相談(ご相談) 保証金/敷金 12ヶ月 / ご相談 償却 ご相談 礼金 ご相談 更新料/再契約料 ー その他費用 ー 仲介手数料 1ヶ月 その他手数料 ー 契約期間 3年 契約種別 普通賃貸借
用途
-
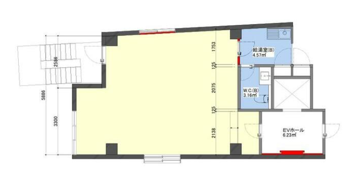
物件の現況 ー 可能用途 指定あり 坪数 17.60坪
- 備考
- 業態につきましてはお気軽にスタッフまでお申し付けくださいませ。
中途解約不可です。夜間オートロックあり
駅から近い事務所・店舗物件です。

























