物件ID:168669
情報公開日:2025年08月04日
情報更新日:2026年04月21日
立地
-
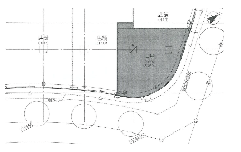
住所 東京都墨田区京島一丁目6-10 建物名/所在階 アトラスタワー曳舟/1階 最寄駅 京成押上線京成曳舟駅
徒歩3分近隣駅1 ー 近隣駅2 ー
費用/契約
-
造作価格 ご相談 賃料(坪単価) 594,000円(32,817円) 管理費/共益費(坪単価) ー(ー) 保証金/敷金 10ヶ月 / ー 償却 3ヶ月 礼金 3ヶ月 更新料/再契約料 2ヶ月 その他費用 ー 仲介手数料 1ヶ月 その他手数料 ー 契約期間 2年 契約種別
用途
-
物件の現況 飲食(その他) 可能用途 指定あり 坪数 18.10坪
- 備考
- カラオケ・クラブ・ペット業態不可
営業時間制限:25時 迄




















