物件ID:166465
情報公開日:2026年04月10日
情報更新日:2026年04月10日
立地
-
住所 東京都千代田区内神田二丁目7-6 建物名/所在階 ゆまにビルディング 1F/1階 最寄駅 JR山手線神田駅
徒歩3分近隣駅1 東京メトロ丸ノ内線大手町駅
徒歩3分近隣駅2 東京メトロ銀座線神田駅
徒歩6分
費用/契約
-
造作価格 ー 賃料(坪単価) 660,000円(22,014円) 管理費/共益費(坪単価) 99,000円(3,302円) 保証金/敷金 8ヶ月 / ー 償却 2ヶ月 礼金 0ヶ月 更新料/再契約料 ー その他費用 ー 仲介手数料 1ヶ月 その他手数料 ー 契約期間 2年 契約種別
用途
-
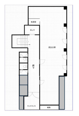
物件の現況 サービス(その他) 可能用途 指定あり 坪数 29.98坪
- 備考



















