物件ID:165623
情報公開日:2026年03月18日
情報更新日:2026年03月18日
立地
-
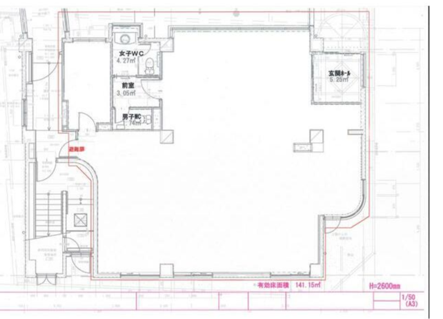
住所 東京都江戸川区西葛西三丁目18-1 建物名/所在階 三枝ビル別館/1階 最寄駅 東京メトロ東西線西葛西駅
徒歩4分近隣駅1 ー 近隣駅2 ー
費用/契約
-
造作価格 ー 賃料(坪単価) 715,000円(16,745円) 管理費/共益費(坪単価) ー(ー) 保証金/敷金 ー / 4ヶ月 償却 2ヶ月 礼金 2ヶ月 更新料/再契約料 ー その他費用 ー 仲介手数料 1ヶ月 その他手数料 ー 契約期間 5年 契約種別 普通賃貸借
用途
-
物件の現況 サービス(その他) 可能用途 指定あり 坪数 42.70坪
- 備考


























