物件ID:164754
情報公開日:2025年07月01日
情報更新日:2026年03月10日
立地
-
住所 東京都渋谷区渋谷一丁目7-2 建物名/所在階 VORT渋谷eastII/1階 最寄駅 東急東横線渋谷駅
徒歩6分近隣駅1 JR山手線渋谷駅
徒歩8分近隣駅2 東京メトロ銀座線表参道駅
徒歩8分
費用/契約
-
造作価格 ー 賃料(坪単価) 942,000円(60,478円) 管理費/共益費(坪単価) ー(ー) 保証金/敷金 ー / 12ヶ月 償却 0% 礼金 0ヶ月 更新料/再契約料 1ヶ月 その他費用 火災保険・保証会社加入要/壁面、看板使用料等あり 仲介手数料 1ヶ月 その他手数料 ー 契約期間 2年 契約種別
用途
-
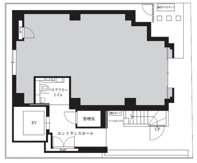
物件の現況 サービス(その他) 可能用途 指定あり 坪数 15.58坪
- 備考
- 天高3410mm 電灯20kVA、動力20kW 都市ガス
正面のガラス面使用料:2,200円/㎡ 最低掲出料:5,500円
※ガラスの外面を使用する場合のみ使用料発生。庇、自動ドア周囲は除く



















