物件ID:163124
情報公開日:2025年06月17日
情報更新日:2026年03月26日
立地
-
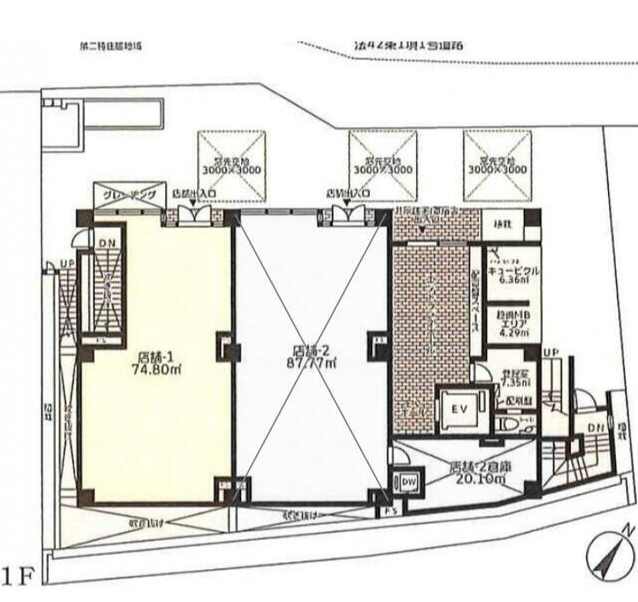
住所 東京都渋谷区神宮前五丁目42-14 建物名/所在階 豊匯ビル(ホウカイビル) 1区画/1階 最寄駅 東京メトロ銀座線表参道駅
徒歩7分近隣駅1 ー 近隣駅2 ー
費用/契約
-
造作価格 ー 賃料(坪単価) 905,200円(40,000円) 管理費/共益費(坪単価) ー(ー) 保証金/敷金 5ヶ月 / ー 償却 15% 礼金 1ヶ月 更新料/再契約料 1ヶ月 その他費用 指定保証会社・火災保険加入必須 仲介手数料 1ヶ月 その他手数料 ー 契約期間 5年 契約種別 普通賃貸借
用途
-
物件の現況 ー 可能用途 指定あり 坪数 22.63坪
- 備考
- ガスなし (プロパン設置相談可) 消防設備・防災工事B工事
天井高:3150mm 空調機設置貸主負担 軽飲食相談可
物販店・美容室におすすめ























