物件ID:163073
情報公開日:2025年06月17日
情報更新日:2026年03月15日
立地
-
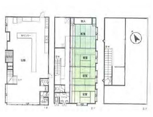
住所 東京都八王子市石川町2953-3 建物名/所在階 仮 大谷緑園建設テナント一括 1-3F/1~3階 最寄駅 JR八高線(八王子~高麗川)北八王子駅
徒歩1分近隣駅1 ー 近隣駅2 ー
費用/契約
-
造作価格 ー 賃料(坪単価) 816,000円(10,743円) 管理費/共益費(坪単価) 55,000円(724円) 保証金/敷金 ー / 6ヶ月 償却 1ヶ月 礼金 1ヶ月 更新料/再契約料 ー その他費用 ー 仲介手数料 1ヶ月 その他手数料 ー 契約期間 3年 契約種別
用途
-
物件の現況 居酒屋 可能用途 指定あり 坪数 75.95坪
- 備考






















