物件ID:162327
情報公開日:2025年06月11日
情報更新日:2026年04月15日
立地
-
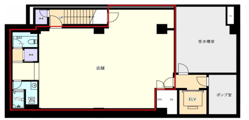
住所 東京都中央区日本橋人形町一丁目5-8 建物名/所在階 アトリウム日本橋人形町1丁目/地下1階 最寄駅 東京メトロ日比谷線人形町駅
徒歩1分近隣駅1 都営浅草線人形町駅
徒歩1分近隣駅2 東京メトロ半蔵門線水天宮前駅
徒歩3分
費用/契約
-
造作価格 ー 賃料(坪単価) 740,905円(20,900円) 管理費/共益費(坪単価) ー(ー) 保証金/敷金 6ヶ月 / 0ヶ月 償却 0% 礼金 1ヶ月 更新料/再契約料 1ヶ月 その他費用 ー 仲介手数料 1ヶ月 その他手数料 ー 契約期間 10年 契約種別 普通賃貸借
用途
-
物件の現況 ー 可能用途 指定あり 坪数 35.45坪
- 備考
- エアコン 2基新設、トイレ 2カ所新設
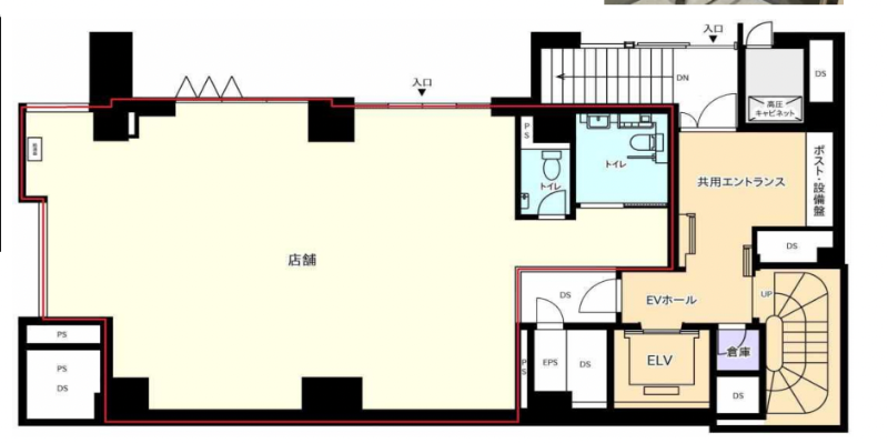
地下2階27坪352,300円(税別)もご案内中























