物件ID:160082
情報公開日:2025年05月24日
情報更新日:2026年02月16日
立地
-
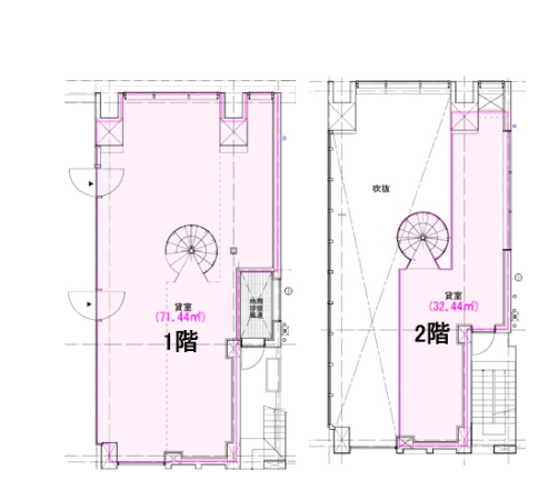
住所 東京都中央区銀座一丁目28-16 建物名/所在階 SUGIURA GINZA 1F.2F南/1~2階 最寄駅 東京メトロ有楽町線新富町駅
徒歩2分近隣駅1 ー 近隣駅2 ー
費用/契約
-
造作価格 ー 賃料(坪単価) 1,728,100円(54,993円) 管理費/共益費(坪単価) ー(ー) 保証金/敷金 10ヶ月 / ー 償却 1ヶ月 礼金 0ヶ月 更新料/再契約料 ー その他費用 ー 仲介手数料 1ヶ月 その他手数料 ー 契約期間 5年 契約種別
用途
-
物件の現況 ー 可能用途 指定あり 坪数 31.42坪
- 備考



















