物件ID:159271
情報公開日:2025年05月17日
情報更新日:2026年04月20日
立地
-
住所 神奈川県横浜市中区長者町九丁目138 建物名/所在階 長者町マスダビル/3階 最寄駅 京急本線日ノ出町駅
徒歩3分近隣駅1 ー 近隣駅2 ー
費用/契約
-
造作価格 ー 賃料(坪単価) 638,000円(7,575円) 管理費/共益費(坪単価) 44,000円(522円) 保証金/敷金 6ヶ月 / ー 償却 20% 礼金 1ヶ月 更新料/再契約料 1ヶ月 その他費用 ー 仲介手数料 1ヶ月 その他手数料 ー 契約期間 10年 契約種別
用途
-
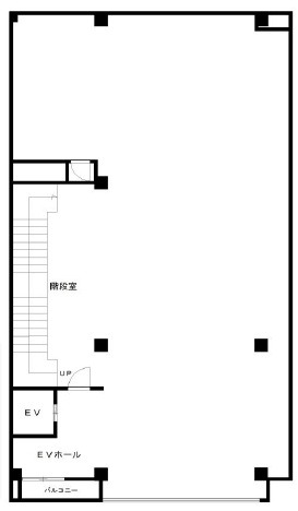
物件の現況 ー 可能用途 指定あり 坪数 84.22坪
- 備考
- ☆スケルトンならではのレイアウトフリープラン!
☆賃料値上げなし&更新料なしの10年間長期契約!
☆天井高3.5m、大通り沿い、ゆとりの1フロア1テナント!



























