物件ID:160403
情報公開日:2025年05月27日
情報更新日:2026年03月24日
立地
-
住所 神奈川県横浜市中区蓬莱町一丁目1-3 建物名/所在階 belle関内/地下1階 最寄駅 JR根岸線関内駅
徒歩1分近隣駅1 ブルーライン関内駅
徒歩1分近隣駅2 ブルーライン伊勢佐木長者町駅
徒歩5分
費用/契約
-
造作価格 ー 賃料(坪単価) 768,152円(8,799円) 管理費/共益費(坪単価) 240,048円(2,749円) 保証金/敷金 4ヶ月 / 0ヶ月 償却 1ヶ月 礼金 0ヶ月 更新料/再契約料 0ヶ月 その他費用 ー 仲介手数料 1ヶ月 その他手数料 ー 契約期間 4年 契約種別 普通賃貸借
用途
-
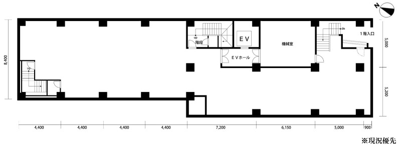
物件の現況 ー 可能用途 何業も可 坪数 87.29坪
- 備考
- 屋上看板利用可:55,000円/月



























