物件ID:159152
情報公開日:2025年05月16日
情報更新日:2026年04月13日
立地
-
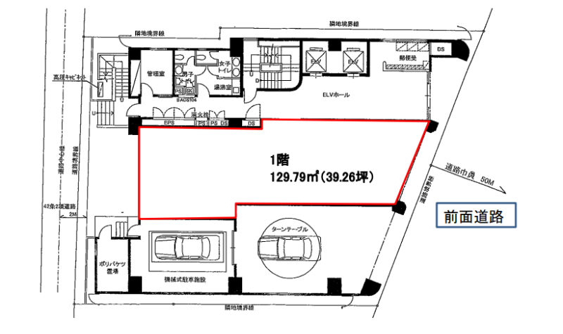
住所 東京都渋谷区円山町28-3 建物名/所在階 いちご渋谷道玄坂ビル/1階 最寄駅 東急東横線渋谷駅
徒歩9分近隣駅1 京王井の頭線神泉駅
徒歩3分近隣駅2 ー
費用/契約
-
造作価格 ご相談 賃料(坪単価) 1,942,380円(49,488円) 管理費/共益費(坪単価) 137,410円(3,851円) 保証金/敷金 0ヶ月 / ご相談 償却 ご相談 礼金 ご相談 更新料/再契約料 ー その他費用 ー 仲介手数料 1ヶ月 その他手数料 ー 契約期間 ー 契約種別
用途
-
物件の現況 カフェ 可能用途 指定あり 坪数 39.25坪
- 備考
- 設備増設借主負担の場合、重飲食も相談可能
無柱空間 天井高:2,600mm 各階個別空調システム採用
エレベーター2基 OAフロア 機械警備有



















