物件ID:158710
情報公開日:2025年07月31日
情報更新日:2026年04月13日
立地
-
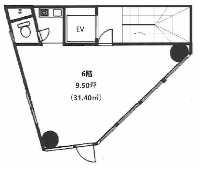
住所 東京都渋谷区恵比寿西一丁目7-5 建物名/所在階 かどやビル/6階 最寄駅 JR山手線恵比寿駅
徒歩1分近隣駅1 東京メトロ日比谷線恵比寿駅
徒歩1分近隣駅2 ー
費用/契約
-
造作価格 ー 賃料(坪単価) 440,000円(46,293円) 管理費/共益費(坪単価) ー(ー) 保証金/敷金 8,000,000 / ー 償却 50% 礼金 1ヶ月 更新料/再契約料 1ヶ月 その他費用 ー 仲介手数料 1ヶ月 その他手数料 ー 契約期間 2年 契約種別 普通賃貸借
用途
-
物件の現況 サービス(その他) 可能用途 指定あり 坪数 9.50坪
- 備考



























