物件ID:158309
情報公開日:2025年05月09日
情報更新日:2026年04月17日
立地
-
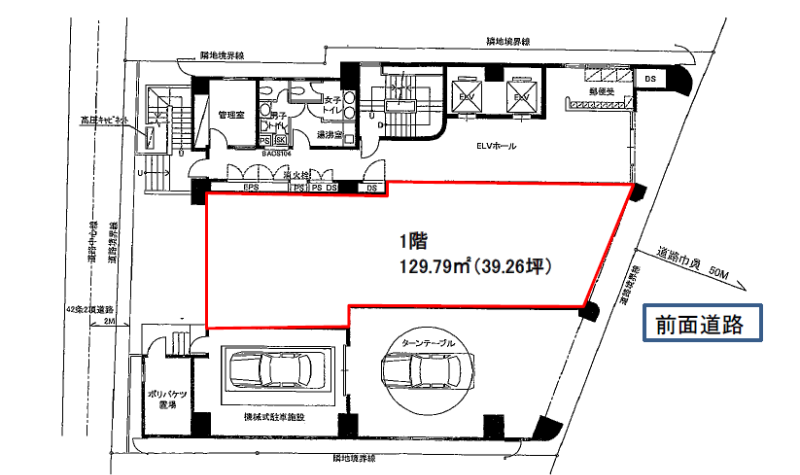
住所 東京都渋谷区円山町28-3 建物名/所在階 1階 最寄駅 京王井の頭線渋谷駅
徒歩6分近隣駅1 JR山手線渋谷駅
徒歩9分近隣駅2 京王井の頭線神泉駅
徒歩3分
費用/契約
-
造作価格 ー 賃料(坪単価) ご相談(0円) 管理費/共益費(坪単価) 137,410円(3,849円) 保証金/敷金 ー / ご相談 償却 ご相談 礼金 ご相談 更新料/再契約料 ー その他費用 ー 仲介手数料 1ヶ月 その他手数料 ー 契約期間 ー 契約種別
用途
-
物件の現況 ー 可能用途 指定あり 坪数 39.26坪
- 備考
- 保証会社加入必須 保険加入必須
天井高2,600mm



















