物件ID:158246
情報公開日:2026年01月29日
情報更新日:2026年04月23日
立地
-
住所 東京都北区東十条四丁目2-13 建物名/所在階 GATO東十条 1F /1階 最寄駅 JR京浜東北線東十条駅
徒歩2分近隣駅1 ー 近隣駅2 ー
費用/契約
-
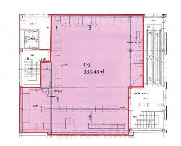
造作価格 ー 賃料(坪単価) 3,300,000円(31,104円) 管理費/共益費(坪単価) ー(ー) 保証金/敷金 6ヶ月 / ー 償却 1ヶ月 礼金 0ヶ月 更新料/再契約料 ー その他費用 ー 仲介手数料 1ヶ月 その他手数料 ー 契約期間 10年 契約種別
用途
-
物件の現況 ー 可能用途 指定あり 坪数 106.09坪
- 備考



















