物件ID:156653
情報公開日:2025年04月22日
情報更新日:2026年04月10日
立地
-
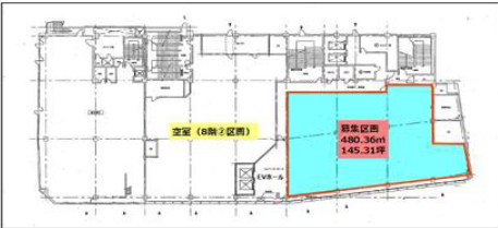
住所 神奈川県横須賀市若松町二丁目4 建物名/所在階 横須賀中央駅前ビル8F①/8階 最寄駅 京急本線横須賀中央駅
徒歩3分近隣駅1 ー 近隣駅2 ー
費用/契約
-
造作価格 ー 賃料(坪単価) 1,180,487円(7,699円) 管理費/共益費(坪単価) 505,923円(3,299円) 保証金/敷金 10ヶ月 / ー 償却 0% 礼金 1ヶ月 更新料/再契約料 ー その他費用 ー 仲介手数料 1ヶ月 その他手数料 ー 契約期間 3年 契約種別 普通賃貸借
用途
-
物件の現況 ー 可能用途 指定あり 坪数 153.32坪
- 備考



















