物件ID:155904
情報公開日:2025年04月15日
情報更新日:2026年04月23日
立地
-
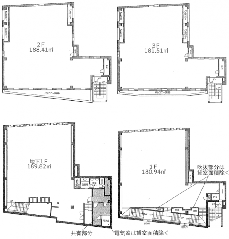
住所 東京都八王子市明神町二丁目27-2 建物名/所在階 地下1~3階 最寄駅 京王線京王八王子駅
徒歩1分近隣駅1 ー 近隣駅2 ー
費用/契約
-
造作価格 ー 賃料(坪単価) 2,200,000円(9,819円) 管理費/共益費(坪単価) ー(ー) 保証金/敷金 10ヶ月 / ー 償却 50% 礼金 1ヶ月 更新料/再契約料 1ヶ月 その他費用 ー 仲介手数料 1ヶ月 その他手数料 ー 契約期間 3年 契約種別
用途
-
物件の現況 ー 可能用途 指定あり 坪数 224.05坪
- 備考
- 保険会社加入要、保証会社加入要























