物件ID:155051
情報公開日:2025年04月09日
情報更新日:2026年03月13日
立地
-
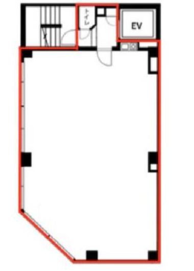
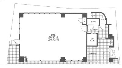
住所 東京都品川区西五反田七丁目16-3 建物名/所在階 東京モリスビル第10 3F/3階 最寄駅 東急池上線大崎広小路駅
徒歩5分近隣駅1 ー 近隣駅2 ー
費用/契約
-
造作価格 ー 賃料(坪単価) 441,760円(16,000円) 管理費/共益費(坪単価) ー(ー) 保証金/敷金 6ヶ月 / ー 償却 1ヶ月 礼金 1ヶ月 更新料/再契約料 ー その他費用 ー 仲介手数料 1ヶ月 その他手数料 ー 契約期間 2年 契約種別 普通賃貸借
用途
-
物件の現況 サービス(その他) 可能用途 指定あり 坪数 27.61坪
- 備考





















