物件ID:140664
情報公開日:2025年07月07日
情報更新日:2026年03月16日
立地
-
住所 東京都港区赤坂四丁目1-5 建物名/所在階 赤坂有馬ビル/1階 最寄駅 東京メトロ銀座線赤坂見附駅
徒歩3分近隣駅1 東京メトロ千代田線赤坂駅
徒歩8分近隣駅2 東京メトロ半蔵門線永田町駅
徒歩7分
費用/契約
-
造作価格 ー 賃料(坪単価) 564,740円(37,375円) 管理費/共益費(坪単価) ー(ー) 保証金/敷金 8ヶ月 / 0ヶ月 償却 ご相談 礼金 1ヶ月 更新料/再契約料 ー その他費用 袖看板使用料:11,000円/月 仲介手数料 1ヶ月 その他手数料 ー 契約期間 5年 契約種別 普通賃貸借
用途
-
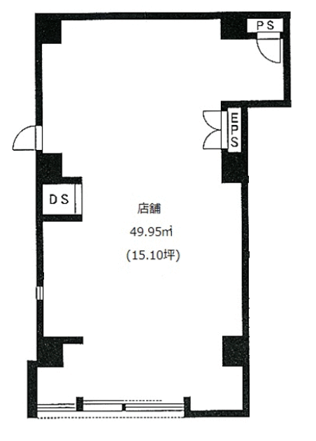
物件の現況 ー 可能用途 指定あり 坪数 15.11坪
- 備考
- ⽔道・電気は検針の上請求






















