物件ID:139403
情報公開日:2025年08月12日
情報更新日:2025年11月05日
立地
-
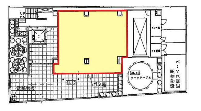
住所 東京都千代田区五番町1-9 建物名/所在階 MG市ヶ谷ビルディング/1階 最寄駅 JR中央・総武線市ケ谷駅
徒歩1分近隣駅1 都営新宿線市ヶ谷駅
徒歩1分近隣駅2 東京メトロ南北線市ケ谷駅
徒歩1分
費用/契約
-
造作価格 ー 賃料(坪単価) 1,413,280円(44,000円) 管理費/共益費(坪単価) ー(ー) 保証金/敷金 12ヶ月 / ー 償却 0% 礼金 0ヶ月 更新料/再契約料 ー その他費用 ー 仲介手数料 1ヶ月 その他手数料 ー 契約期間 2年 契約種別 普通賃貸借
用途
-
物件の現況 ー 可能用途 指定あり 坪数 32.12坪
- 備考




















