物件ID:136793
情報公開日:2024年10月21日
情報更新日:2026年03月09日
立地
-
住所 東京都渋谷区渋谷一丁目3-7 建物名/所在階 クローバー渋谷 (クローバーシブヤ)/2階 最寄駅 東急東横線渋谷駅
徒歩6分近隣駅1 東京メトロ銀座線表参道駅
徒歩8分近隣駅2 JR山手線渋谷駅
徒歩10分
費用/契約
-
造作価格 ー 賃料(坪単価) 2,106,000円(38,495円) 管理費/共益費(坪単価) ー(ー) 保証金/敷金 ー / 5ヶ月 償却 0% 礼金 0ヶ月 更新料/再契約料 1ヶ月 その他費用 ー 仲介手数料 1ヶ月 その他手数料 ー 契約期間 2年 契約種別
用途
-
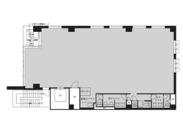
物件の現況 サービス(その他) 可能用途 ご相談 坪数 54.71坪
- 備考
- 土日・祝日利用可/敷金ゼロプラン利用相談可
※毎月、敷金保証額の1.5%が別途掛かります。
※敷金ゼロプラン用に、別途審査がございます。



















