物件ID:134723
情報公開日:2025年01月08日
情報更新日:2026年03月13日
立地
-
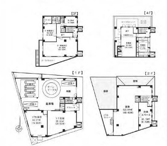
住所 東京都福生市大字福生2167 建物名/所在階 リブライト福生 一棟1-4F/1~4階 最寄駅 JR八高線(八王子~高麗川)東福生駅
徒歩4分近隣駅1 JR青梅線福生駅
徒歩13分近隣駅2 ー
費用/契約
-
造作価格 ー 賃料(坪単価) 880,000円(3,728円) 管理費/共益費(坪単価) ー(ー) 保証金/敷金 3ヶ月 / ー 償却 20% 礼金 1ヶ月 更新料/再契約料 ー その他費用 ー 仲介手数料 1ヶ月 その他手数料 ー 契約期間 3年 契約種別
用途
-
物件の現況 サービス(その他) 可能用途 指定あり 坪数 236.05坪
- 備考



















