物件ID:134549
情報公開日:2024年10月01日
情報更新日:2026年04月24日
立地
-
住所 東京都中央区銀座四丁目1 建物名/所在階 北数寄屋ビル/2階 最寄駅 東京メトロ銀座線銀座駅
徒歩1分近隣駅1 東京メトロ丸ノ内線銀座駅
徒歩1分近隣駅2 東京メトロ日比谷線銀座駅
徒歩1分
費用/契約
-
造作価格 ー 賃料(坪単価) 3,610,750円(27,498円) 管理費/共益費(坪単価) 133,774円(1,018円) 保証金/敷金 12ヶ月 / 0ヶ月 償却 ご相談 礼金 0ヶ月 更新料/再契約料 ご相談 その他費用 ー 仲介手数料 1ヶ月 その他手数料 ー 契約期間 3年 契約種別 普通賃貸借
用途
-
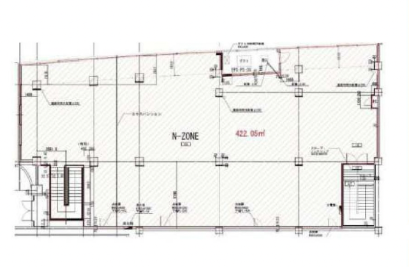
物件の現況 ー 可能用途 指定あり 坪数 131.31坪
- 備考
- 前テナント業種:旅行会社、大看板設置可能
天井高:約2,800㎜、トイレ(共用)、男女別トイレ
新耐震基準、エアコン、OAフロア、飲食不可、専用自動ドア





















