物件ID:129998
情報公開日:2024年08月10日
情報更新日:2026年04月01日
立地
-
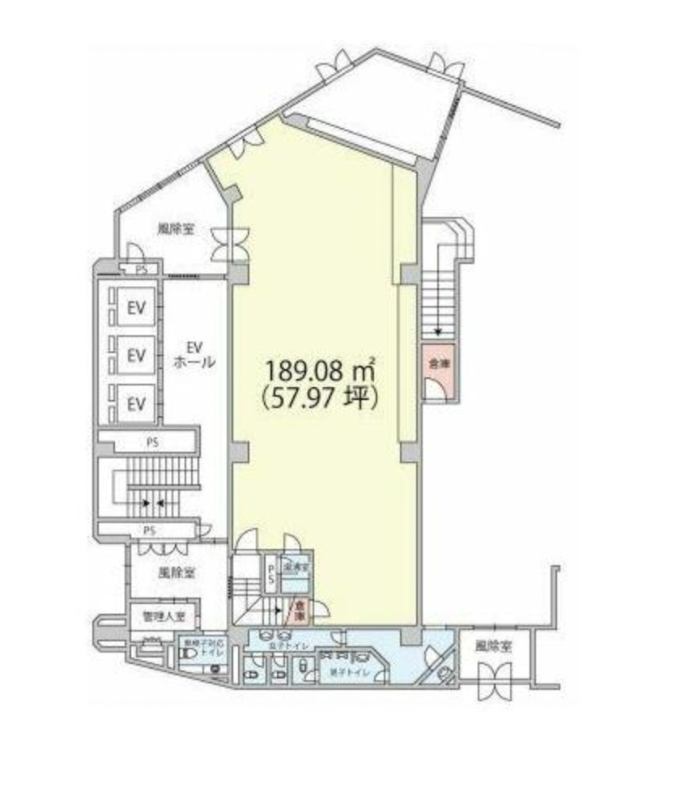
住所 東京都台東区上野一丁目19-10 建物名/所在階 上野広小路会館ビル/1階 最寄駅 JR山手線御徒町駅
徒歩2分近隣駅1 JR京浜東北線御徒町駅
徒歩2分近隣駅2 JR山手線上野駅
徒歩6分
費用/契約
-
造作価格 ー 賃料(坪単価) 1,663,900円(28,201円) 管理費/共益費(坪単価) 207,988円(3,525円) 保証金/敷金 10ヶ月 / 0ヶ月 償却 1ヶ月 礼金 0ヶ月 更新料/再契約料 0ヶ月 その他費用 袖看板:25,000円(別途消費税) 仲介手数料 1ヶ月 その他手数料 ー 契約期間 2年 契約種別
用途
-
物件の現況 サービス(その他) 可能用途 指定あり 坪数 59.00坪
- 備考
- 土日・祝日利用可 天井高2.5m以上
2006年9月耐震工事済






















