物件ID:120793
情報公開日:2024年05月10日
情報更新日:2026年04月01日
立地
-
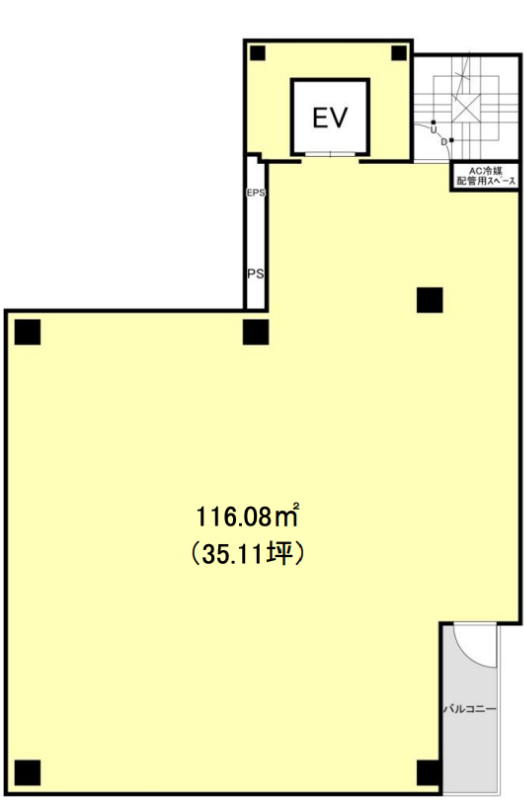
住所 東京都中央区銀座五丁目6 建物名/所在階 SANWAすずらんBldg./6階 最寄駅 東京メトロ銀座線銀座駅
徒歩1分近隣駅1 ー 近隣駅2 ー
費用/契約
-
造作価格 ー 賃料(坪単価) 1,409,666円(40,145円) 管理費/共益費(坪単価) 135,173円(3,849円) 保証金/敷金 12ヶ月 / ー 償却 10% 礼金 0ヶ月 更新料/再契約料 0ヶ月 その他費用 ー 仲介手数料 1ヶ月 その他手数料 ー 契約期間 5年 契約種別 普通賃貸借
用途
-
物件の現況 ー 可能用途 指定あり 坪数 35.11坪
- 備考
- ビル共用ダクトあり
セキュリティ有り(セコム)






















