物件ID:81461
情報公開日:2025年02月10日
情報更新日:2026年04月20日
立地
-
住所 東京都小金井市本町五丁目18-5 建物名/所在階 太平ビル/1階 最寄駅 JR中央線(快速)武蔵小金井駅
徒歩3分近隣駅1 ー 近隣駅2 ー
費用/契約
-
造作価格 ご相談 賃料(坪単価) 924,000円(26,400円) 管理費/共益費(坪単価) ー(ー) 保証金/敷金 12ヶ月 / ー 償却 20% 礼金 1ヶ月 更新料/再契約料 1ヶ月 その他費用 ー 仲介手数料 1ヶ月 その他手数料 ー 契約期間 8年 契約種別 普通賃貸借
用途
-
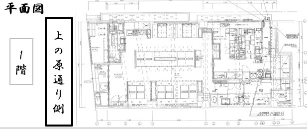
物件の現況 飲食(その他) 可能用途 何業も可 坪数 35.00坪
- 備考
- ★1階②区画(約27坪)も同時募集中!
引渡方法:相談(現状:とんかつ屋)




















