物件ID:201131
情報公開日:2026年04月29日
情報更新日:2026年04月29日
立地
-
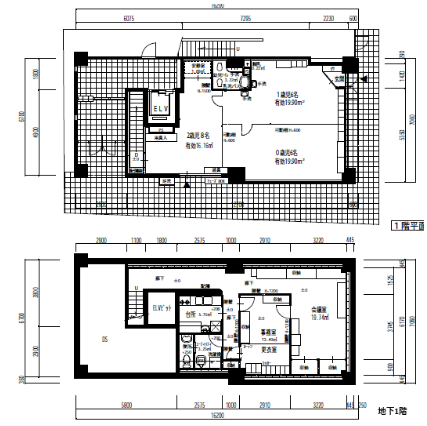
住所 東京都中央区月島四丁目18-3 建物名/所在階 地下1~1階 最寄駅 都営大江戸線月島駅
徒歩4分近隣駅1 ー 近隣駅2 ー
費用/契約
-
造作価格 ー 賃料(坪単価) 878,800円(18,701円) 管理費/共益費(坪単価) ー(ー) 保証金/敷金 0ヶ月 / 6ヶ月 償却 ご相談 礼金 1ヶ月 更新料/再契約料 ー その他費用 ー 仲介手数料 1ヶ月 その他手数料 ー 契約期間 2年 契約種別
用途
-
物件の現況 ー 可能用途 指定あり 坪数 46.99坪
- 備考




















