物件ID:200093
情報公開日:2026年04月21日
情報更新日:2026年04月21日
立地
-
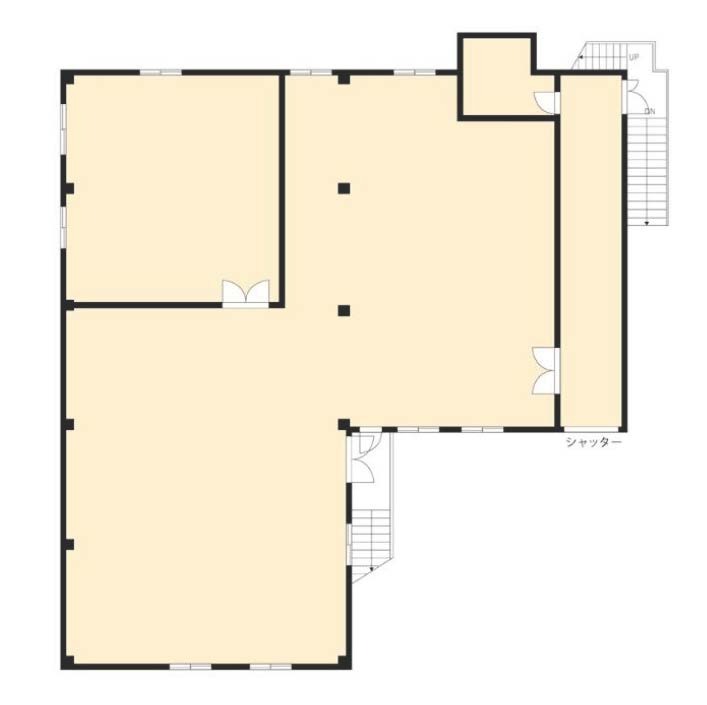
住所 東京都八王子市中野山王一丁目21-1 建物名/所在階 中野山王一丁目貸事務所・倉庫/1~2階 最寄駅 JR中央本線(東京~塩尻)西八王子駅
徒歩35分近隣駅1 JR中央線(快速)西八王子駅
徒歩35分近隣駅2 ー
費用/契約
-
造作価格 ー 賃料(坪単価) 495,000円(2,940円) 管理費/共益費(坪単価) ー(ー) 保証金/敷金 3ヶ月 / 0ヶ月 償却 0% 礼金 1ヶ月 更新料/再契約料 1ヶ月 その他費用 ー 仲介手数料 1ヶ月 その他手数料 ー 契約期間 3年 契約種別
用途
-
物件の現況 ー 可能用途 指定あり 坪数 168.31坪
- 備考



















