物件ID:199697
情報公開日:2026年04月17日
情報更新日:2026年04月17日
立地
-
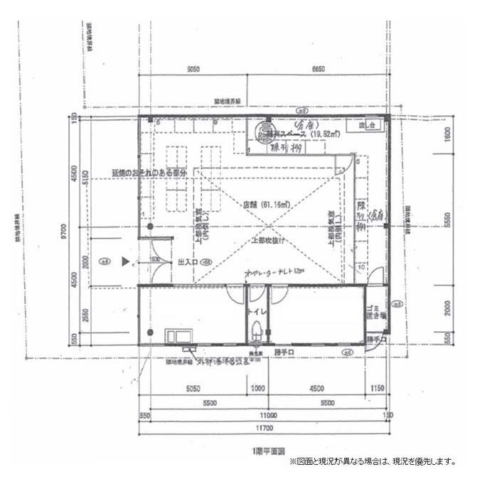
住所 東京都立川市錦町五丁目19-18 建物名/所在階 フロムアミティ日野橋 A2号棟/1階 最寄駅 多摩モノレール柴崎体育館駅
徒歩10分近隣駅1 ー 近隣駅2 ー
費用/契約
-
造作価格 ー 賃料(坪単価) 495,000円(14,700円) 管理費/共益費(坪単価) ー(ー) 保証金/敷金 0ヶ月 / 10ヶ月 償却 ご相談 礼金 1ヶ月 更新料/再契約料 ー その他費用 ー 仲介手数料 1ヶ月 その他手数料 ー 契約期間 10年 契約種別 普通賃貸借
用途
-
物件の現況 ー 可能用途 指定あり 坪数 33.67坪
- 備考



















