物件ID:199637
情報公開日:2026年04月17日
情報更新日:2026年04月17日
立地
-
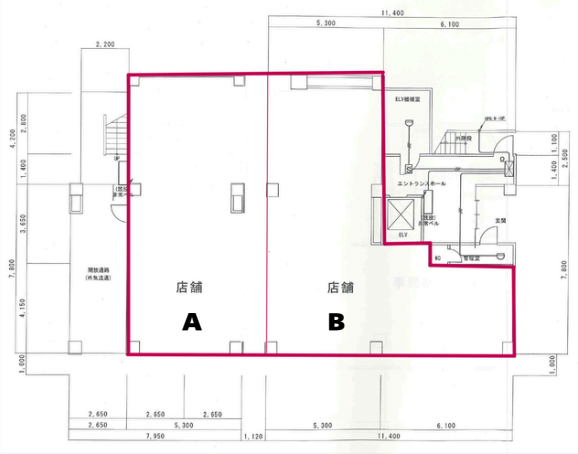
住所 東京都練馬区豊玉北二丁目16-1 建物名/所在階 With2in1/1階 最寄駅 都営大江戸線新江古田駅
徒歩5分近隣駅1 西武池袋線江古田駅
徒歩10分近隣駅2 西武池袋線桜台駅
徒歩10分
費用/契約
-
造作価格 ー 賃料(坪単価) 794,860円(14,997円) 管理費/共益費(坪単価) 80,200円(1,664円) 保証金/敷金 6ヶ月 / 0ヶ月 償却 2ヶ月 礼金 0ヶ月 更新料/再契約料 1ヶ月 その他費用 ー 仲介手数料 1ヶ月 その他手数料 ー 契約期間 3年 契約種別
用途
-
物件の現況 ー 可能用途 指定あり 坪数 53.00坪
- 備考
- 設備:東京電力、都市ガス、公共下水道





















