物件ID:199625
情報公開日:2026年04月16日
情報更新日:2026年04月16日
立地
-
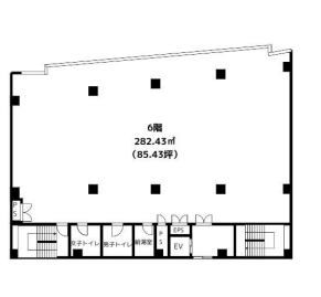
住所 東京都大田区蒲田五丁目28-4 建物名/所在階 ECS第27ビル/6階 最寄駅 JR京浜東北線蒲田駅
徒歩6分近隣駅1 ー 近隣駅2 ー
費用/契約
-
造作価格 ー 賃料(坪単価) 1,597,541円(18,698円) 管理費/共益費(坪単価) ー(ー) 保証金/敷金 6ヶ月 / ー 償却 ご相談 礼金 0ヶ月 更新料/再契約料 ー その他費用 ー 仲介手数料 1ヶ月 その他手数料 ー 契約期間 2年 契約種別 普通賃貸借
用途
-
物件の現況 サービス(その他) 可能用途 ご相談 坪数 85.44坪
- 備考
- 保証会社加入要



















