物件ID:199588
情報公開日:2026年04月16日
情報更新日:2026年04月16日
立地
-
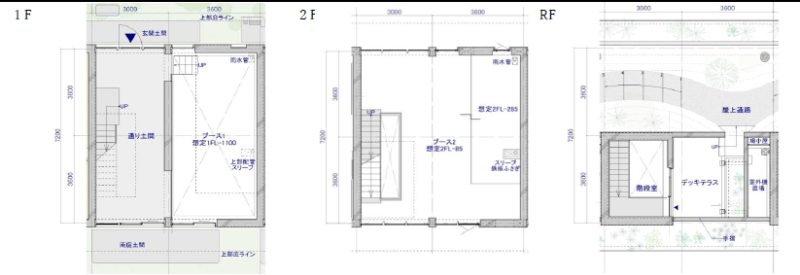
住所 神奈川県川崎市高津区久本一丁目4-43 建物名/所在階 MAZAKA E区画 1-2F/1~2階 最寄駅 東急田園都市線溝の口駅
徒歩5分近隣駅1 ー 近隣駅2 ー
費用/契約
-
造作価格 ー 賃料(坪単価) 498,000円(17,890円) 管理費/共益費(坪単価) 11,000円(395円) 保証金/敷金 ー / 3ヶ月 償却 ご相談 礼金 1ヶ月 更新料/再契約料 1ヶ月 その他費用 ー 仲介手数料 1ヶ月 その他手数料 ー 契約期間 3年 契約種別 普通賃貸借
用途
-
物件の現況 ー 可能用途 指定あり 坪数 27.84坪
- 備考




















