物件ID:199497
情報公開日:2026年04月16日
情報更新日:2026年04月16日
立地
-
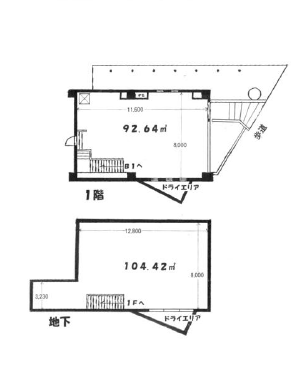
住所 神奈川県横浜市中区石川町一丁目25-1 建物名/所在階 東急ドエルアルス横濱元町 1F/1階 最寄駅 JR根岸線石川町駅
徒歩6分近隣駅1 ー 近隣駅2 ー
費用/契約
-
造作価格 ー 賃料(坪単価) 880,000円(14,762円) 管理費/共益費(坪単価) 110,000円(1,845円) 保証金/敷金 0ヶ月 / 0ヶ月 償却 20% 礼金 0ヶ月 更新料/再契約料 1ヶ月 その他費用 エステティックサロン造作、一部残置あり造作料なし 仲介手数料 1ヶ月 その他手数料 ー 契約期間 3年 契約種別
用途
-
物件の現況 エステ・マッサージ・サロン 可能用途 指定あり 坪数 59.61坪
- 備考
- その他償却条件:3年未満の早期解約の場合、保証金償却50%



















