物件ID:199288
情報公開日:2026年04月14日
情報更新日:2026年04月15日
立地
-
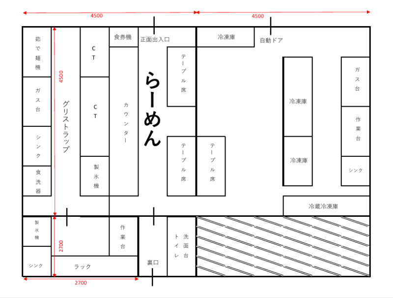
住所 埼玉県入間市宮寺611-1 建物名/所在階 AB区画一括/1階 最寄駅 JR八高線(八王子~高麗川)箱根ケ崎駅 近隣駅1 ー 近隣駅2 ー
費用/契約
-
造作価格 2,750,000万円 賃料(坪単価) 124,730円(6,286円) 管理費/共益費(坪単価) ー(ー) 保証金/敷金 2ヶ月 / ー 償却 0% 礼金 1ヶ月 更新料/再契約料 ご相談 その他費用 造作売買手数料:44万円 企画料1か月分 仲介手数料 1ヶ月 その他手数料 ー 契約期間 3年 契約種別
用途
-
物件の現況 ラーメン 可能用途 指定あり 坪数 19.84坪
- 備考
- 保証会社・火災保険加入要 A区画(39㎡)、B区画(26.6㎡)
駐車場4台分付き 営業中のため情報の取り扱いには注意願います
上記条件は現条件のため変更される場合があります



















