物件ID:179238
情報公開日:2025年11月03日
情報更新日:2026年04月09日
立地
-
住所 埼玉県入間市宮寺2774-1 建物名/所在階 1~2階 最寄駅 西武池袋線入間市駅
徒歩70分近隣駅1 ー 近隣駅2 ー
費用/契約
-
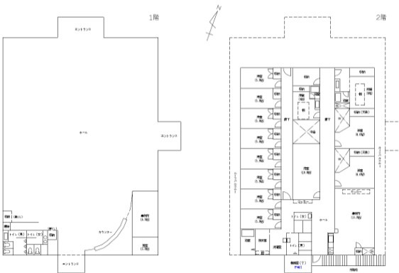
造作価格 ー 賃料(坪単価) 2,530,000円(11,022円) 管理費/共益費(坪単価) ー(ー) 保証金/敷金 ー / 3ヶ月 償却 ご相談 礼金 1ヶ月 更新料/再契約料 ー その他費用 ー 仲介手数料 1ヶ月 その他手数料 ー 契約期間 3年 契約種別
用途
-
物件の現況 娯楽施設・レジャー施設 可能用途 何業も可 坪数 229.53坪
- 備考




















