物件ID:199076
情報公開日:2026年04月13日
情報更新日:2026年04月15日
立地
-
住所 東京都新宿区北新宿一丁目13-19 建物名/所在階 弘林ビル/3階 最寄駅 JR中央・総武線大久保駅
徒歩4分近隣駅1 ー 近隣駅2 ー
費用/契約
-
造作価格 ご相談 賃料(坪単価) 753,830円(15,400円) 管理費/共益費(坪単価) ー(ー) 保証金/敷金 ー / 6ヶ月 償却 2ヶ月 礼金 ご相談 更新料/再契約料 1ヶ月 その他費用 保証会社・火災保険加入要 仲介手数料 1ヶ月 その他手数料 ー 契約期間 3年 契約種別
用途
-
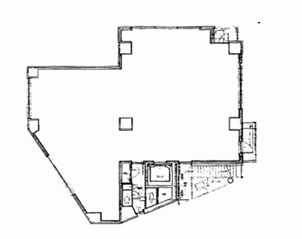
物件の現況 クリニック 可能用途 指定あり 坪数 48.95坪
- 備考
- 現況:クリニック 空調設備:個別パッケージ方式
床仕様:OAなし、、オーナー付設相談可 看板・袖看板:別途見積り
契約面積にはトイレ・給湯室等の共用部を含む



















