物件ID:199063
情報公開日:2026年04月13日
情報更新日:2026年04月13日
立地
-
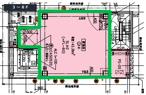
住所 東京都渋谷区神南一丁目9-5 建物名/所在階 ACN渋谷神南ビル/7階 最寄駅 JR山手線渋谷駅
徒歩9分近隣駅1 ー 近隣駅2 ー
費用/契約
-
造作価格 ー 賃料(坪単価) 603,900円(49,500円) 管理費/共益費(坪単価) ー(ー) 保証金/敷金 ー / 8ヶ月 償却 1ヶ月 礼金 ご相談 更新料/再契約料 1ヶ月 その他費用 保証会社・火災保険加入必須 仲介手数料 1ヶ月 その他手数料 ー 契約期間 3年 契約種別 普通賃貸借
用途
-
物件の現況 ー 可能用途 指定あり 坪数 12.20坪
- 備考
- EV1基



















