物件ID:199061
情報公開日:2026年04月13日
情報更新日:2026年04月13日
立地
-
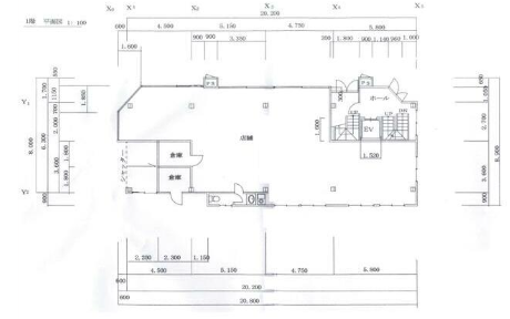
住所 東京都世田谷区尾山台二丁目29-17 建物名/所在階 1階 最寄駅 東急大井町線尾山台駅
徒歩5分近隣駅1 ー 近隣駅2 ー
費用/契約
-
造作価格 ー 賃料(坪単価) 1,760,000円(33,834円) 管理費/共益費(坪単価) 66,000円(1,268円) 保証金/敷金 10ヶ月 / ー 償却 ご相談 礼金 1ヶ月 更新料/再契約料 1ヶ月 その他費用 ー 仲介手数料 1ヶ月 その他手数料 ー 契約期間 3年 契約種別
用途
-
物件の現況 物販 可能用途 ご相談 坪数 52.02坪
- 備考




















