物件ID:198848
情報公開日:2026年04月11日
情報更新日:2026年04月11日
立地
-
住所 東京都港区南青山五丁目11-24 建物名/所在階 グレイセス/地下1階 最寄駅 東京メトロ銀座線表参道駅
徒歩3分近隣駅1 東京メトロ千代田線表参道駅
徒歩3分近隣駅2 東京メトロ半蔵門線表参道駅
徒歩3分
費用/契約
-
造作価格 ー 賃料(坪単価) 1,650,000円(39,155円) 管理費/共益費(坪単価) 110,000円(2,610円) 保証金/敷金 0ヶ月 / 10ヶ月 償却 2ヶ月 礼金 2ヶ月 更新料/再契約料 1ヶ月 その他費用 ー 仲介手数料 1ヶ月 その他手数料 ー 契約期間 3年 契約種別 普通賃貸借
用途
-
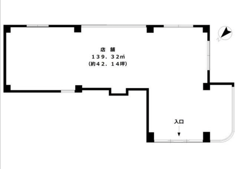
物件の現況 ー 可能用途 指定あり 坪数 42.14坪
- 備考
- テラスとして利用可能






















