物件ID:198824
情報公開日:2026年04月10日
情報更新日:2026年04月10日
立地
-
住所 東京都墨田区東向島二丁目5-5 建物名/所在階 堀コーポ/1階 最寄駅 東武伊勢崎線曳舟駅
徒歩4分近隣駅1 京成押上線京成曳舟駅
徒歩9分近隣駅2 京成押上線押上(スカイツリー前)駅
徒歩14分
費用/契約
-
造作価格 ー 賃料(坪単価) 165,000円(21,043円) 管理費/共益費(坪単価) ご相談(ご相談) 保証金/敷金 ご相談 / 3ヶ月 償却 2ヶ月 礼金 1ヶ月 更新料/再契約料 ー その他費用 ー 仲介手数料 1ヶ月 その他手数料 ー 契約期間 2年 契約種別 普通賃貸借
用途
-
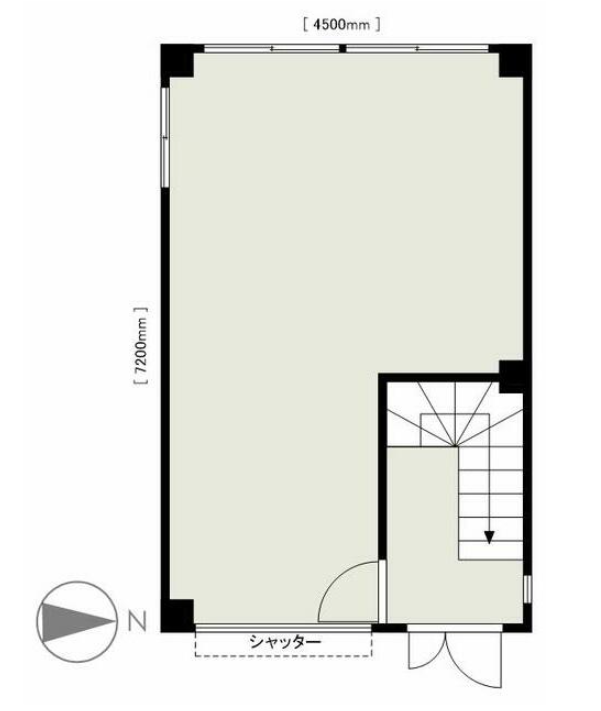
物件の現況 サービス(その他) 可能用途 指定あり 坪数 7.84坪
- 備考
- 業態につきましてはお気軽にスタッフまでお申し付けくださいませ。
曳舟が最寄りの路面店舗物件です。



















