物件ID:198470
情報公開日:2026年04月08日
情報更新日:2026年04月08日
立地
-
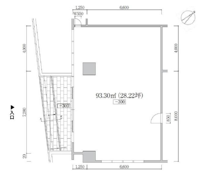
住所 東京都豊島区巣鴨四丁目28-4 建物名/所在階 1階 最寄駅 JR山手線巣鴨駅
徒歩9分近隣駅1 ー 近隣駅2 ー
費用/契約
-
造作価格 ー 賃料(坪単価) 682,000円(24,164円) 管理費/共益費(坪単価) ー(ー) 保証金/敷金 ー / 6ヶ月 償却 ご相談 礼金 1ヶ月 更新料/再契約料 ー その他費用 保証会社、店舗保険必須等 仲介手数料 1ヶ月 その他手数料 ー 契約期間 5年 契約種別 普通賃貸借
用途
-
物件の現況 ー 可能用途 指定あり 坪数 28.22坪
- 備考






















