物件ID:198311
情報公開日:2026年04月08日
情報更新日:2026年04月08日
立地
-
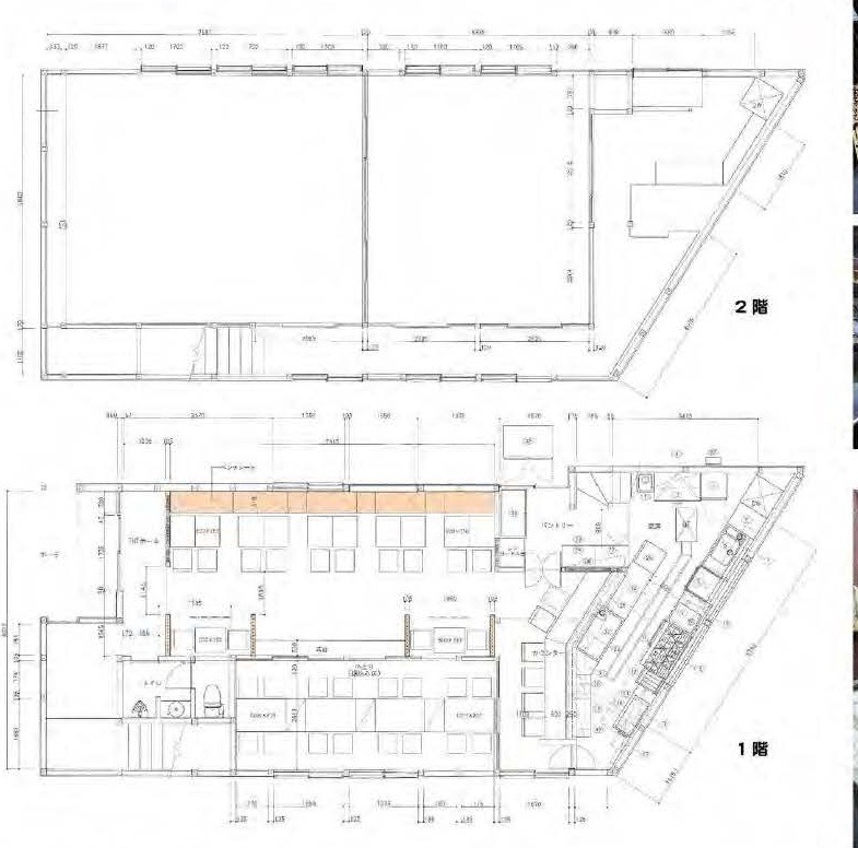
住所 東京都墨田区墨田三丁目30-8 建物名/所在階 若草拾八蕃館 一棟/1~2階 最寄駅 東武伊勢崎線鐘ヶ淵駅
徒歩1分近隣駅1 ー 近隣駅2 ー
費用/契約
-
造作価格 ー 賃料(坪単価) 352,000円(5,221円) 管理費/共益費(坪単価) ー(ー) 保証金/敷金 ー / 3ヶ月 償却 0% 礼金 2ヶ月 更新料/再契約料 3ヶ月 その他費用 火災保険加入必須 仲介手数料 1ヶ月 その他手数料 ー 契約期間 3年 契約種別
用途
-
物件の現況 居酒屋 可能用途 指定あり 坪数 67.41坪
- 備考




















