物件ID:197573
情報公開日:2026年04月02日
情報更新日:2026年04月02日
立地
-
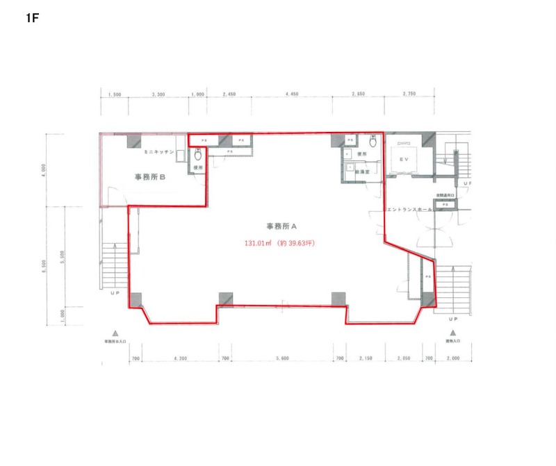
住所 東京都中央区八丁堀三丁目19-9 建物名/所在階 トーエイ八丁堀ビル/1階 最寄駅 東京メトロ日比谷線八丁堀駅
徒歩2分近隣駅1 東京メトロ東西線茅場町駅
徒歩5分近隣駅2 東京メトロ日比谷線茅場町駅
徒歩5分
費用/契約
-
造作価格 ー 賃料(坪単価) 741,081円(61,818円) 管理費/共益費(坪単価) ー(ー) 保証金/敷金 ご相談 / ー 償却 0% 礼金 0ヶ月 更新料/再契約料 ー その他費用 ー 仲介手数料 1ヶ月 その他手数料 ー 契約期間 ー 契約種別 普通賃貸借
用途
-
物件の現況 サービス(その他) 可能用途 指定あり 坪数 11.99坪
- 備考





















