物件ID:197285
情報公開日:2026年03月31日
情報更新日:2026年03月31日
立地
-
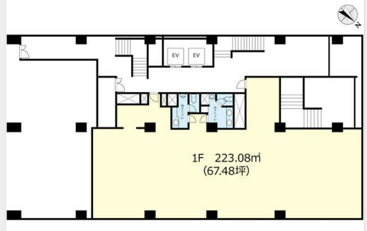
住所 東京都港区東新橋一丁目1-21 建物名/所在階 今朝ビル/1階 最寄駅 JR山手線新橋駅
徒歩1分近隣駅1 都営大江戸線汐留駅
徒歩1分近隣駅2 都営浅草線新橋駅
徒歩2分
費用/契約
-
造作価格 ー 賃料(坪単価) 4,063,983円(60,223円) 管理費/共益費(坪単価) 204,127円(3,024円) 保証金/敷金 ご相談 / 10ヶ月 償却 1ヶ月 礼金 ご相談 更新料/再契約料 ー その他費用 ー 仲介手数料 1ヶ月 その他手数料 ー 契約期間 2年 契約種別
用途
-
物件の現況 サービス(その他) 可能用途 指定あり 坪数 67.48坪
- 備考
- 業態につきましてはお気軽にスタッフまでお申し付けくださいませ。
サービス店舗などにおすすめです!
新橋駅まですぐの好立地路面店舗物件

























