物件ID:197276
情報公開日:2026年03月31日
情報更新日:2026年03月31日
立地
-
住所 東京都江戸川区東葛西六丁目5 建物名/所在階 ウツイ商事第1ビル 201/2階 最寄駅 東京メトロ東西線葛西駅
徒歩3分近隣駅1 東京メトロ東西線西葛西駅
徒歩20分近隣駅2 東京メトロ東西線浦安駅
徒歩25分
費用/契約
-
造作価格 ー 賃料(坪単価) 473,000円(13,173円) 管理費/共益費(坪単価) 55,000円(1,531円) 保証金/敷金 3ヶ月 / ご相談 償却 1ヶ月 礼金 1ヶ月 更新料/再契約料 2ヶ月 その他費用 ー 仲介手数料 1ヶ月 その他手数料 ー 契約期間 3年 契約種別
用途
-
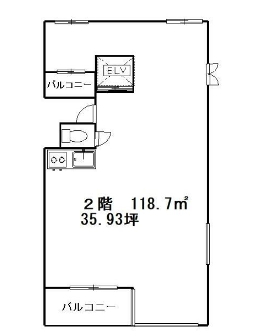
物件の現況 サービス(その他) 可能用途 指定あり 坪数 35.91坪
- 備考
- 業態につきましてはお気軽にスタッフまでお申し付けくださいませ。
前テナントは塾・スクール関係 飲食店は不可になります。
葛西駅徒歩圏内の好立地テナント






















